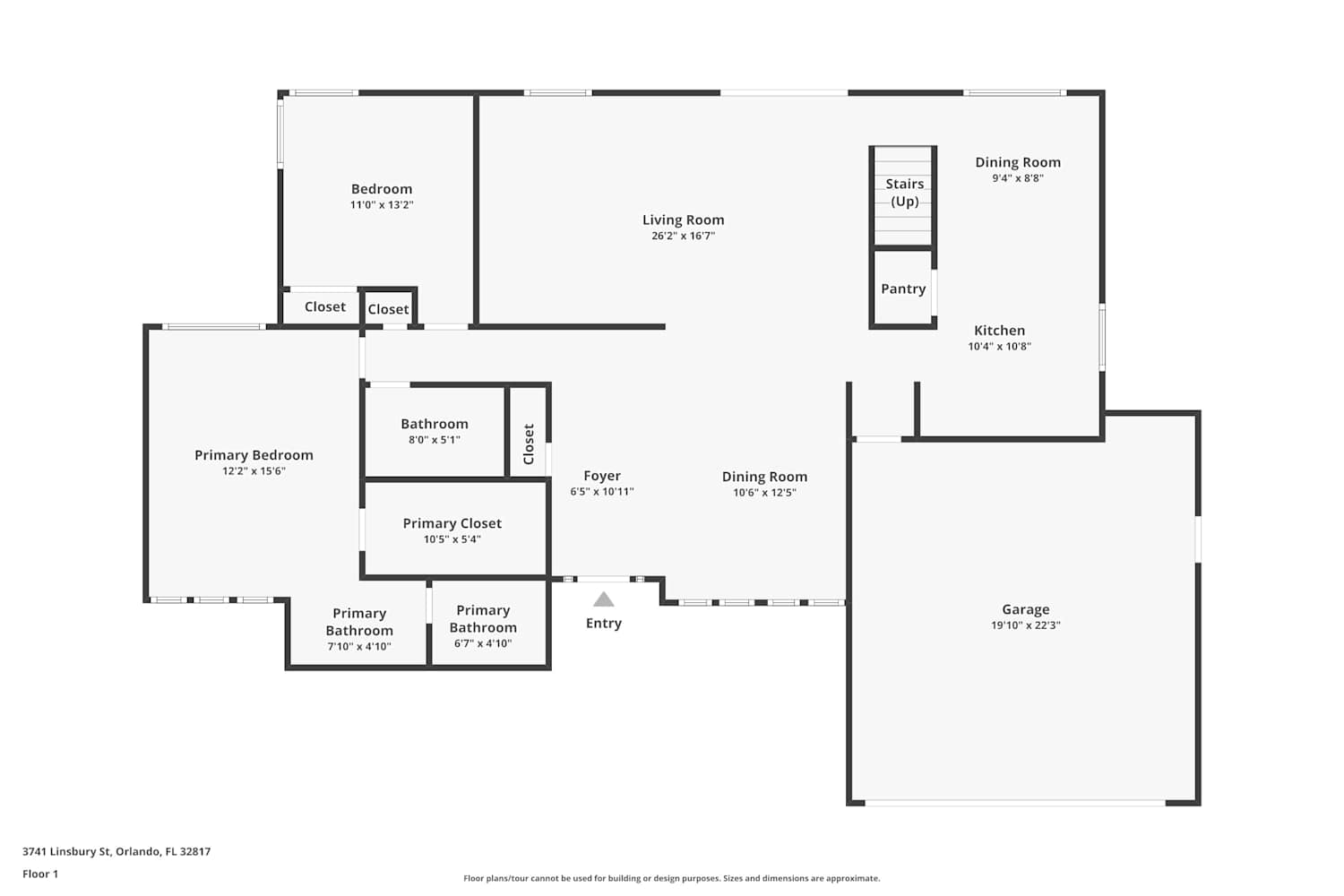
4
Bedrooms
3.0
Bathrooms
1,886
Sq Ft
1-Car
Garage
This home is currently undergoing exciting renovations! You’ll love coming home to your brand-new bathroom lights and LVP to replace all flooring to match existing LVP. Please note the photos above reflect the current state of the home and do not yet include these improvements. Apply online today or contact your Invitation Homes Leasing Experience Specialist for more information!
Property Type
House
Listing Type
For Rent
Status
available
Year Built
N/A
Stories
1
Lot Size
N/A
Neighborhood
null
ZIP Code
32817
Condition
good
Home Features
Utility & Maintenance
Community Features
Pet Policy
This home welcomes your furry family members. Cats and dogs are welcome — contact us for breed/weight restrictions and pet deposit details.
3743 Linsbury St, Orlando, FL 32817
Hover price bubbles to preview nearby listings · Click to view
Response within 24 hours.
Response within 24 hours.