3
Bedrooms
2.5
Bathrooms
1,890
Sq Ft
1-Car
Garage
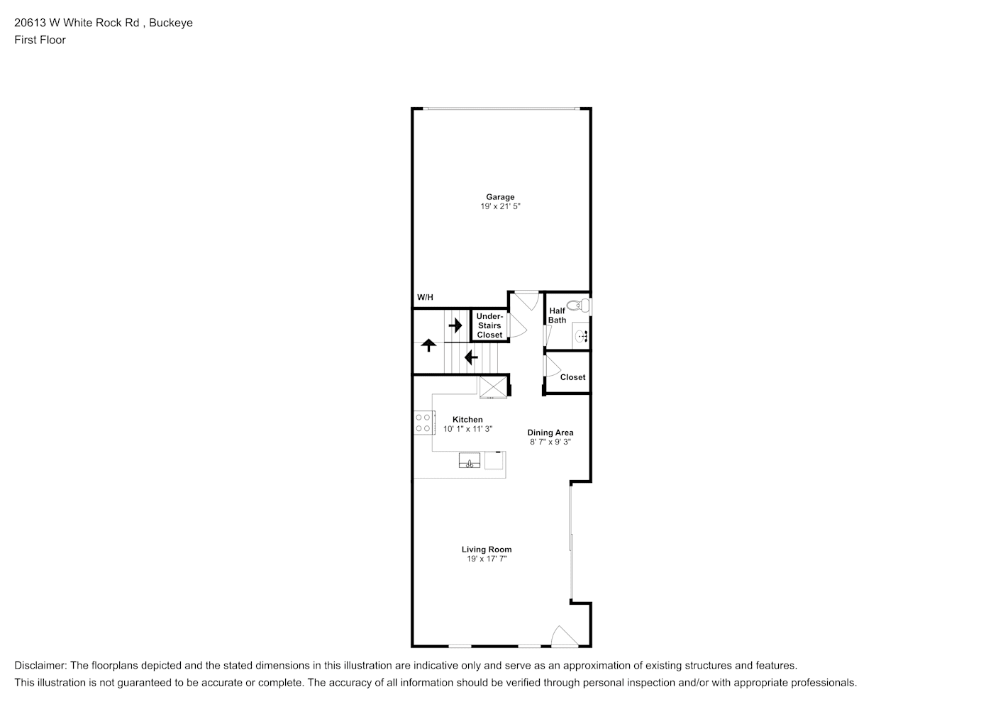
Loving where you live is easy when you have a house like this. You'll notice lots of natural light spilling into the entryway as soon as you open the door. Wood-style tile flooring runs throughout the living area. There's an attached garage perfect for storage and DIY projects. The kitchen comes complete with high-end cabinets, shiny stainless-steel appliances and granite countertops all coordinated to deliver an inspiring cooking space that you will love. Confidently let your furry friends loose in the fenced yard. Neighborhood amenities include a tot lot, community pool, fitness center, clubhouse, and basketball court. Apply online today! This home includes a washer & dryer, included in your lease for just $40 per month in addition to rent.
Property Type
House
Listing Type
For Rent
Status
available
Year Built
N/A
Stories
1
Lot Size
N/A
Neighborhood
null
ZIP Code
85396
Condition
good
Home Features
Kitchen Features
Utility & Maintenance
Community Features
Pet Policy
This home welcomes your furry family members. Cats and dogs are welcome — contact us for breed/weight restrictions and pet deposit details.
20613 W White Rock Rd, Buckeye, AZ 85396
Hover price bubbles to preview nearby listings · Click to view
View 360° Virtual Tour
Interactive 3D walkthrough
Open full screenResponse within 24 hours.
Response within 24 hours.